物件情報
[売買2,200万円]No.313伊勢原(いせはら)
物件の概要
利便性×閑静な住宅地の一角。とても丁寧に大切に管理されてきた家です。
| 所在地 | 東御市常田222‐66 | 敷地面積 | 243.83㎡(73.75坪) |
|---|---|---|---|
| 用途地域 | ― | 延床面積 | 124.16㎡ |
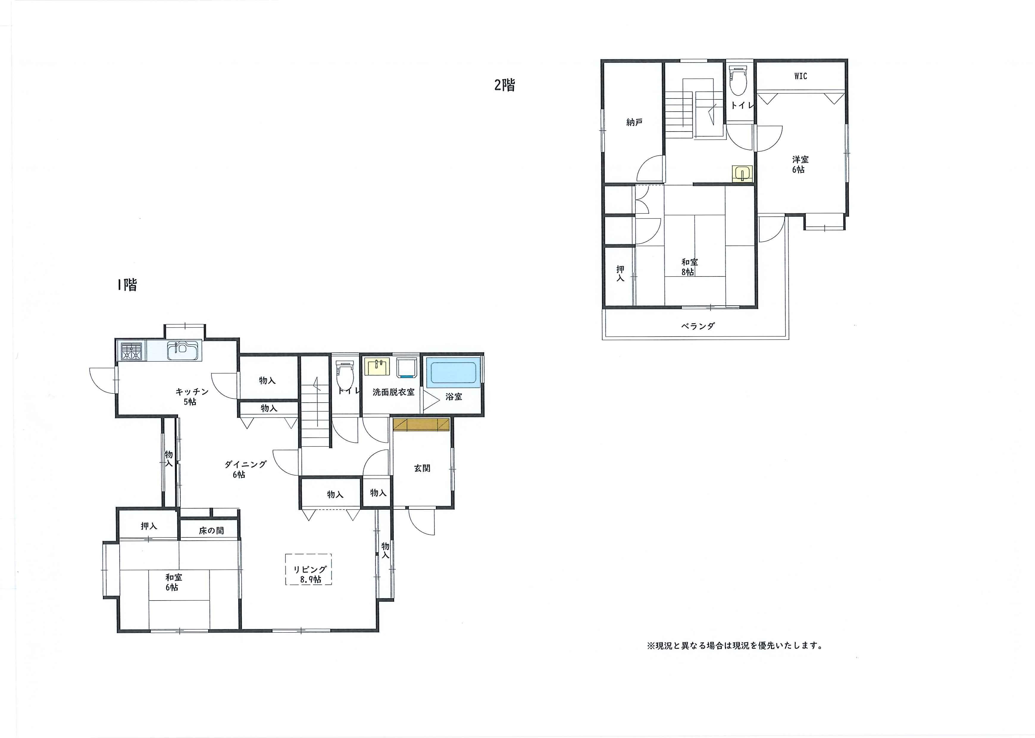
| 売買・賃貸の別 | 売買 | 間取り | 3SLDK |
| 交通 | しなの鉄道田中駅 2km(車 7分) |
設備状況 | ・プロパンガス・上水道・下水道・電気・エアコン |
| 価格 | 2,200万円 | ||
| 建築年 | 1991年10月 | 通学区 | 祢津小学校 1.9km 東部中学校 550m |
| HP掲載開始年月 | 令和8年1月 | 価格改定年月 | ― |
| 備考 |
◆駐車場2台分・日当り良好・閑静住宅街 ※残置物は売主にて処分のため、5 月以降契約、契約から2 か月程度後にお引渡し |
||
掲載されている物件をご覧になりたい方は空き家情報利用登録申込書に必要事項を記載のうえ、提出してください。(押印不要、メール可)
内覧につきましては、見たい物件・見たい日時をメールにてご連絡ください。
市で、空き家・空き土地所有者もしくは仲介業者に伝え、所有者もしくは仲介業者より内覧希望者に連絡します。
お急ぎの方は、電話にてご連絡ください。
空き家相談窓口とうみ
電話:070-8358-0291
メール:go-sodan@akiya-tomi.co.jp
お問い合わせ先
◆空き家バンクのこと、空き家バンク掲載物件のこと
空き家相談窓口とうみ
電話:070-8358-0291
メール:go-sodan@akiya-tomi.co.jp
空き家相談窓口とうみInstagramはこちら
◆補助金のこと
東御市企画振興課移住定住・シティプロモーション係
電話:0268-64-5893(直通)|ファクシミリ:0268-63-5431
メール:iju@city.tomi.nagano.jp














