物件情報
※値下げしました[売買350万円]NO.280白鳥台(しらとりだい)
物件の概要
閑静な住宅地の一角にある平屋の戸建物件。都市ガスは魅力的です。
| 所在地 | 東御市本海野1496−23 | 敷地面積 | 273.31㎡ |
|---|---|---|---|
| 用途地域 | ― | 延床面積 | 89.23㎡ |
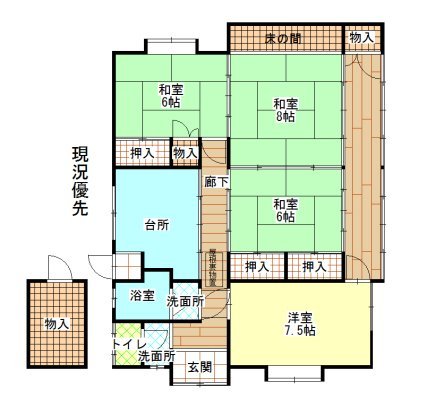
| 売買・賃貸の別 | 売買 | 間取り | 4K |
| 交通 | しなの鉄道田中駅 2.1km(車6分) |
設備状況 | 電気、都市ガス、上水道、下水道、駐車場1台 |
| 価格 | 400万円 | ||
| 建築年 | 昭和40年 | 通学区 | 田中小学校 1.4km 東部中学校 2.8km |
| HP掲載開始年月 | 令和6年9月 | 価格改定年月 |
令和7年10月10日 |
| 備考 | 価格改定 500万円→400万円→350万円 | ||
掲載されている物件をご覧になりたい方は空き家情報利用登録申込書に必要事項を記載のうえ、東御市企画振興課まで提出してください。(押印不要、メール・FAX可)
内覧につきましては、見たい物件・見たい日時をメールにてご連絡ください。
市で、空き家・空き土地所有者もしくは仲介業者に伝え、所有者もしくは仲介業者より内覧希望者に連絡します。
お急ぎの方は、電話にてご連絡ください。
東御市企画振興課移住定住・シティプロモーション係
電話:0268-64-5893
メール:iju@city.tomi.nagano.jp
お問い合わせ先
◆空き家バンクのこと、空き家バンク掲載物件のこと
空き家相談窓口とうみ
電話:070-8358-0291
メール:go-sodan@akiya-tomi.co.jp
空き家相談窓口とうみInstagramはこちら
◆補助金のこと
東御市企画振興課移住定住・シティプロモーション係
電話:0268-64-5893(直通)|ファクシミリ:0268-63-5431
メール:iju@city.tomi.nagano.jp














